1 bedroom Apartment in Santa Maria Maior, Lisboa, Portugal – OHP 001-108
Description
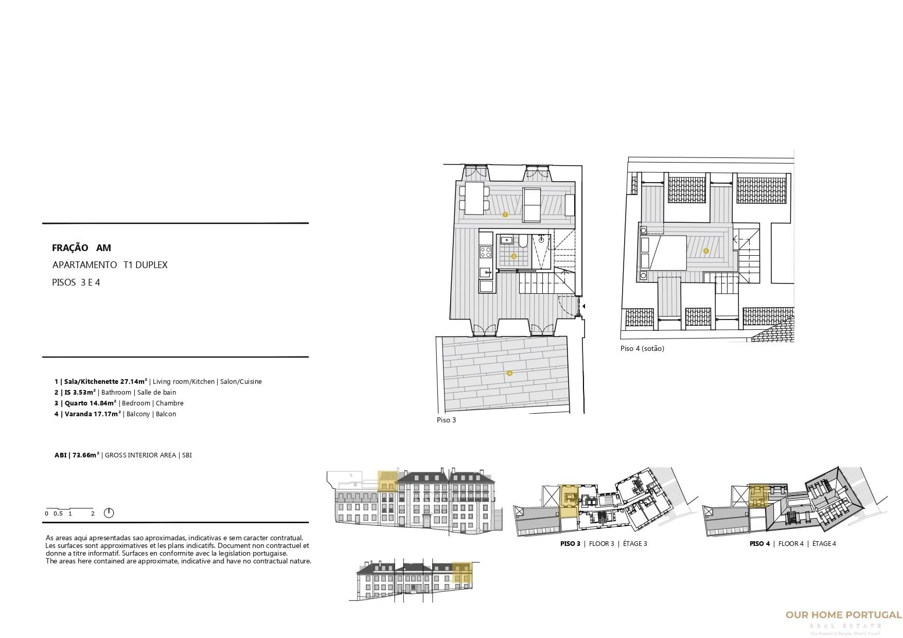
Apartment with a spacious duplex bedroom and a modern bathroom, it is perfect for providing a comfortable and elegant space. A large area of 92 m2 offers a perfect balance between privacy and convenience.
Fully mobile and equipped with modern appliances including laundry equipment and furniture.
Equipped with an elegant kitchenette, built-in cupboards, video intercom, elevator and cupboards with double windows and electrical sockets. With its panoramic view of the city and urbanization, it has easy access to all amenities, such as shops, restaurants, hospitals, farms, public transport, schools, public swimming pools and outdoor areas. Now you have the opportunity to live in a comfortable and modern space.
It is connected to one of the most emblematic places in Lisbon, in Praça do Rossio, which is part of the tourist complex, a building made up of 36 apartments, of types T0, T1, T1 Duplex and T2 Duplex.
This is the corner of Lisbon that enchants people from all over the world, represents its perfection or intersection between heritage and modernity, and its originality in a picturesque space that accompanies the city’s hustle and bustle. Although it is a rehabilitated building, it maintains its typical Liberian structure, continuing the original treasures, overlooking the river, it is the ideal address for those who intend to live or invest in one of the most dynamic cities with constant tourist growth.
The complex is close to important monuments in the metropolis, such as the statue of D. Pedro IV, the D. Maria II Theater and the Coliseu dos Recreios. Located in Praça do Rossio, it benefits from a privileged location on transport routes, with easy access to the metro, buses and Rossio station.
This is the perfect opportunity for you to have the wave you want to experience, while also wanting to experience a luxurious wave trip at home.
Tourist apartments with guaranteed profitability of 4% per year and completely secure management. This is the ideal solution for your investment, but our destinations are understood by Europe and the world.
The amounts related to natural taxes, such as notary and registration taxes, will be the responsibility of the buyer; The broker’s commission must be used by the seller, in accordance with Portuguese law. Item availability will be agreed. All material is based on information that we consider reliable.
A: Yes Q: What is the difference between a residential building and a tourist building?
A: The difference between our traditional residential complexes and our vacation apartment complexes is the same as the services that become our final services, depending on your individual classification. Our holiday apartment complex offers a way to generate returns through exploring an ideal tourist destination. Our holiday apartments are essentially a product that manages profitability, we promote all holiday apartment management designed by our owners, they are responsible for managing all their holiday apartments in the complex.
Our holiday apartment owners are not permitted to use their own apartments for tourist purposes and may therefore use them as a permanent residence.
Q: Can you move out of this apartment and into permanent residence?
A: Quite simply, we can simply inform you of our intention and enter into a contract to do so. Logistical vision is necessary to ensure that the apartment is definitely mobile and equipped with the requirements and standards applicable to the tourist establishment classification.
Contact
OUR HOME PORTUGAL
Property Agent- Property ID OHP 001-108
- Price €700,000
- Property Type Apartment/Penthouse
- Property status For Sale
- Bedrooms 1
- Bathrooms 1
- Size 92 m2
- Land area 92 m2
Address
- Country: Portugal, Portuguese Republic
- Province / State: Lisbon
- City / Town: Santa Maria Maior
