Description
Building Plot with Approved Residential Design Xemxija / St Pauls Bay
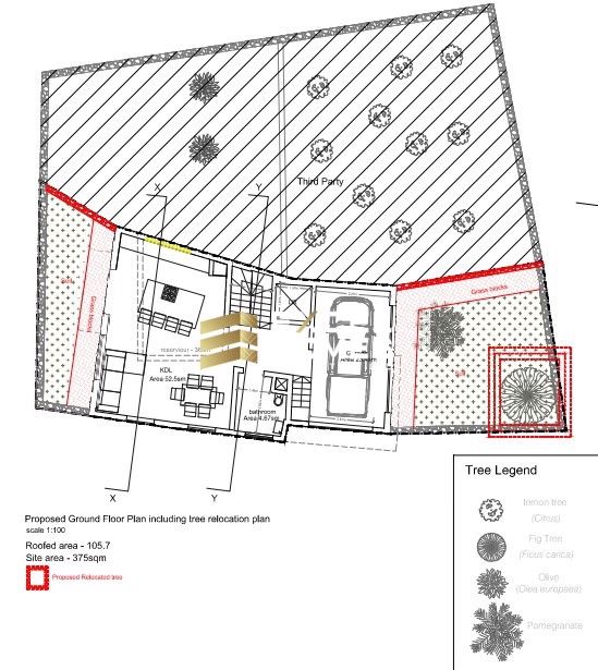
An excellent opportunity to acquire a 375 sqm building plot located in a sought-after area between Xemxija and St Pauls Bay, Malta. This property is being sold with an approved residential design, making it ideal for buyers looking to develop without the delays of planning applications.
The approved plans and drawings are included in the sale and feature a modern, well-thought-out residence designed for comfortable living and practicality.
The proposed layout includes:
One-car garage
Two large bedrooms, both with private terraces
Three bathrooms, including one ensuite
Elevator serving the property
Rooftop jacuzzi, ideal for entertaining and relaxation
Small gardens on either side of the residence
This plot offers a fantastic balance of space, design, and location, close to coastal areas, amenities, and main routes, while still providing privacy and flexibility for a high-quality residential build.
A great opportunity for a private residence or investment project in a highly desirable part of Malta.
Contact
Excel Homes Real Estate
Property Agent- Property ID 66415
- Price โฌ740,000
- Property Type Commercial/Hotel
- Property status For Sale
- Bedrooms 2
- Bathrooms 3
Address
- Country: Malta
- City / Town: Xemxija
