Description
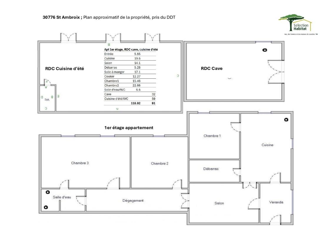
Located on the first floor of a building dating from the 1850s, this apartment offers generous proportions and retains all the charm of the period, including vaulted ceilings, original coloured tiled floors, and a warm, authentic atmosphere.
The apartment currently comprises two bedrooms, a living room, a dining room (which could also be used as a third bedroom), and a separate kitchen.
On the ground floor, the property benefits from a private cellar, housing the gas boiler for heating, as well as a second room known as a โsummer kitchenโ, which requires renovation to be brought up to habitable standard. These spaces offer excellent potential for storage, a workshop, or future additional accommodation.
A particularly rare feature for an apartment is the plot of land located directly in front of the building, planted with olive trees, providing a valuable outdoor space and enhancing the overall appeal of the property. Access to the apartment is via a stone staircase with right of way, in keeping with the character of the building.
With an energy rating of C, the property performs well for a building of this age, offering good everyday comfort and controlled running costs.
Ideally situated within walking distance of shops, schools and the weekly market, this apartment is well suited as a main residence, a second home, or a rental investment.
A rare opportunity to acquire a spacious and characterful apartment with land and outbuildings in the heart of the Cรจze Valley, between the Cรฉvennes and the Ardรจche.
Contact
Selection Habitat / Agence Hamilton
Property Agent- Property ID B85C219CC08841E1
- Price โฌ105,000
- Property Type Apartment/Penthouse
- Property status For Sale
- Bedrooms 3
- Bathrooms 0
- Size 113 m2
- Land area 118 m2
Address
- Country: France
- Province / State: Gard
- City / Town: Saint-Ambroix

