Description
HAMILTON presents this 1,180 sqm plot of land, ideally located in one of Megève’s most sought-after neighborhoods.
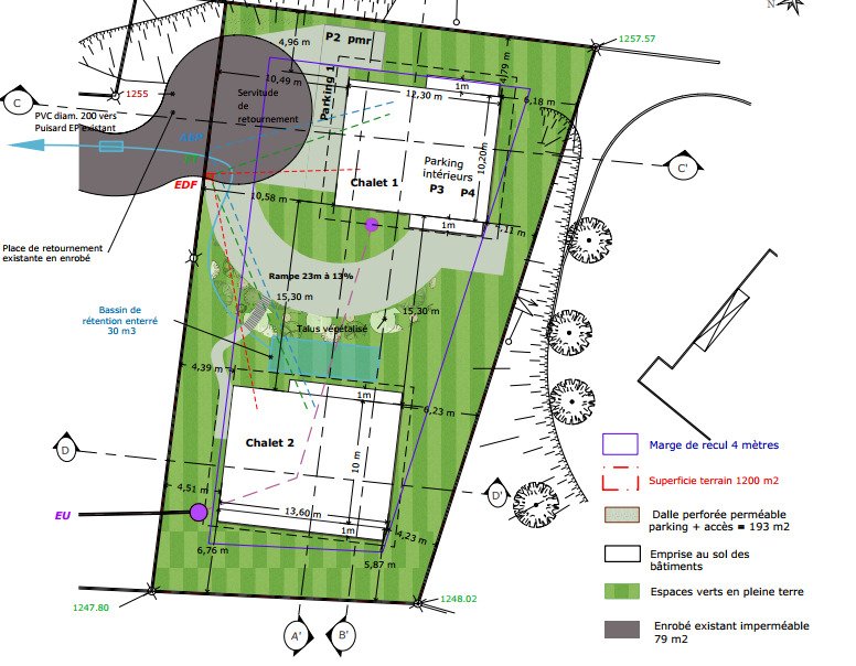
Enjoying open views and set at the end of a quiet cul-de-sac, the property offers peace and privacy—highly coveted in this area. The land is sold with a cleared and finalized building permit for the construction of two chalets, with a total floor area of 436 sqm.
The project is offered turnkey, with earthworks already underway.
A rare opportunity for a secure investment and a bespoke development in the heart of Megève.
Contact
Selection Habitat / Agence Hamilton
Property Agent
+33 613 512 687
finders@europe.properties
finders@europe.properties
- Property ID 95002CDC070C4AAF
- Price €2,200,000
- Property Type Land/Terrain
- Property status For Sale
- Bathrooms 0
- Size 0 m2
- Land area 1,180 m2
Address
Address:
Megeve, Haute-Savoie, France
- Country: France
- Province / State: Haute-Savoie
- City / Town: Megève

